Save
Ask
Tour
Hide
Share
$399,990
127 Days On Site
181 SILVER MYRTLE CourtSt. Augustine, FL 32092
For Sale|Townhouse|Pending
3
Beds
3
Total Baths
2
Full Baths
1
Partial Bath
1,994
SqFt
$201
/SqFt
2025
Built
Subdivision:
Cherry Elm Townhomes
County:
St. Johns
Listing courtesy of NANCY PRUITT of OLYMPUS EXECUTIVE REALTY, INC
Due to the health concerns created by Coronavirus we are offering personal 1-1 online video walkthough tours where possible.
Call Now: 904-683-5230
Is this the listing for you? We can help make it yours.
904-683-5230



Save
Ask
Tour
Hide
Share
Photos
Map
Nearby Listings
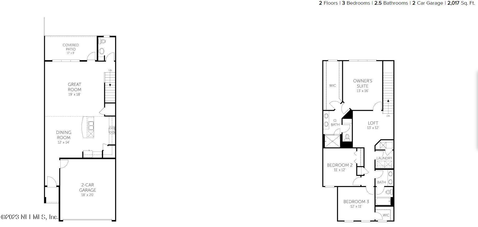
UNDER CONSTRUCTION. READY In Nov 2025 ! 2 CAR GARAGE Townhomes in SILVERLEAF! The Coral floor plan is a 2 story with 3 bedrooms, 2.5 baths plus Loft and a 2 car. Home features 42' White cabinets, Quartz countertops in kitchen & baths, Kitchen Backsplash, Gas Range, Built in Microwave, Laminate Plank flooring in main areas. upgraded tile flooring in baths, Whole house blinds, And Pond View!
Save
Ask
Tour
Hide
Share
Listing Snapshot
Price
$399,990
Days On Site
127 Days
Bedrooms
3
Inside Area (SqFt)
1,994 sqft
Total Baths
3
Full Baths
2
Partial Baths
1
Lot Size
0.06 Acres
Year Built
2025
MLS® Number
2096295
Status
Pending
Property Tax
$822.32
HOA/Condo/Coop Fees
$235 monthly
Sq Ft Source
Plans
Friends & Family
React
Comment
Invite
Recent Activity
| 4 months ago | Listing first seen on site | |
| 4 months ago | Listing updated with changes from the MLS® |
General Features
Acres
0.06
Additional Property Use
Residential
Attached Garage
Yes
Garage
Yes
Garage Spaces
2
Green Energy Efficient
Windows
Number Of Stories
2
Parking
AttachedGarageGarage Door Opener
Property Condition
Under ConstructionNew Construction
Property Sub Type
Townhouse
Security
Carbon Monoxide Detector(s)Security System OwnedSmoke Detector(s)
Sewer
Public Sewer
Special Circumstances
Standard
SqFt Total
2400
Utilities
Cable AvailableCable Connected
Water Source
Public
Zoning
PUD
Interior Features
Appliances
DishwasherDisposalGas RangeMicrowaveTankless Water Heater
Cooling
Central Air
Furnished
Unfurnished
Heating
Central
Interior
Eat-in KitchenEntrance FoyerKitchen IslandPantryWalk-In Closet(s)
Laundry Features
Electric Dryer HookupWasher Hookup
Great Room
Utility Room
Save
Ask
Tour
Hide
Share
Exterior Features
Construction Details
Fiber CementFrame
Patio And Porch
CoveredPatio
Roof
Shingle
Community Features
Association Amenities
ClubhouseJogging PathMaintenance GroundsPlaygroundTennis Court(s)
Association Dues
235
Financing Terms Available
CashConventionalFHAVA Loan
HOA Fee Frequency
Monthly
MLS Area
305-World Golf Village Area-Central
Roads
Asphalt
Schools
School District
Unknown
Elementary School
Wards Creek
Middle School
Pacetti Bay
High School
Tocoi Creek
Listing courtesy of NANCY PRUITT of OLYMPUS EXECUTIVE REALTY, INC
Listing information is provided by Participants of the Northeast Florida Multiple Listing Service(dba realMLS). IDX information is provided exclusively for personal, non-commercial use, and may not be used for any purpose other than to identify prospective properties consumers may be interested in purchasing. Information is deemed reliable but not guaranteed. Copyright 2025, Northeast Florida Multiple Listing Service(dba realMLS).
Last checked: 2025-11-06 03:57 PM UTC
Listing information is provided by Participants of the Northeast Florida Multiple Listing Service(dba realMLS). IDX information is provided exclusively for personal, non-commercial use, and may not be used for any purpose other than to identify prospective properties consumers may be interested in purchasing. Information is deemed reliable but not guaranteed. Copyright 2025, Northeast Florida Multiple Listing Service(dba realMLS).
Last checked: 2025-11-06 03:57 PM UTC
Neighborhood & Commute
Source: Walkscore
Disclosure: Community information and market data powered by Constellation Data Labs. Information is deemed reliable but not guaranteed.
Save
Ask
Tour
Hide
Share
Did you know? You can invite friends and family to your search. They can join your search, rate and discuss listings with you.