316 CHERRY ELM DriveSt. Augustine, FL 32092
Due to the health concerns created by Coronavirus we are offering personal 1-1 online video walkthough tours where possible.




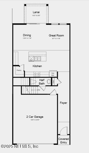
What's Special: East Facing Lot | Best Seller | High Ceilings. New Construction- Ready Now! Built by America's Most Trusted Homebuilder. Welcome to the Birch at 316 Cherry Elm Drive in Cherry Elm at SilverLeaf. This thoughtfully designed new townhome offers an open-concept layout where the kitchen, dining area, and great room flow together for easy living. The kitchen features a large center island and a walk-in pantry, while the covered lanai extends your living space outdoors. Upstairs, you'll find a versatile loft, two secondary bedrooms with a shared bath, and a spacious primary suite with a walk-in closet and dual-sink vanity. A convenient upstairs laundry area and plenty of storage, including coat and linen closets, make everyday life simple. Nestled in St. Johns County, Cherry Elm at SilverLeaf offers low-maintenance living in a master-planned community. MLS#2109831
| a month ago | Listing first seen on site | |
| a month ago | Listing updated with changes from the MLS® |
Listing information is provided by Participants of the Northeast Florida Multiple Listing Service(dba realMLS). IDX information is provided exclusively for personal, non-commercial use, and may not be used for any purpose other than to identify prospective properties consumers may be interested in purchasing. Information is deemed reliable but not guaranteed. Copyright 2025, Northeast Florida Multiple Listing Service(dba realMLS).
Last checked: 2025-11-04 08:56 PM UTC
Did you know? You can invite friends and family to your search. They can join your search, rate and discuss listings with you.