Save
Ask
Tour
Hide
Share
$310,000
36 Days On Site
3225 GINNY LAKE DriveMiddleburg, FL 32068
For Sale|Single Family Residence|Pending
3
Beds
2
Total Baths
2
Full Baths
1,787
SqFt
$173
/SqFt
2014
Built
Subdivision:
Retreat Ii
County:
Clay
Listing courtesy of GAIL LONG of BETTER HOMES & GARDENS REAL ESTATE LIFESTYLES REALTY
Due to the health concerns created by Coronavirus we are offering personal 1-1 online video walkthough tours where possible.
Call Now: 904-683-5230
Is this the listing for you? We can help make it yours.
904-683-5230



Save
Ask
Tour
Hide
Share
Photos
Map
Nearby Listings
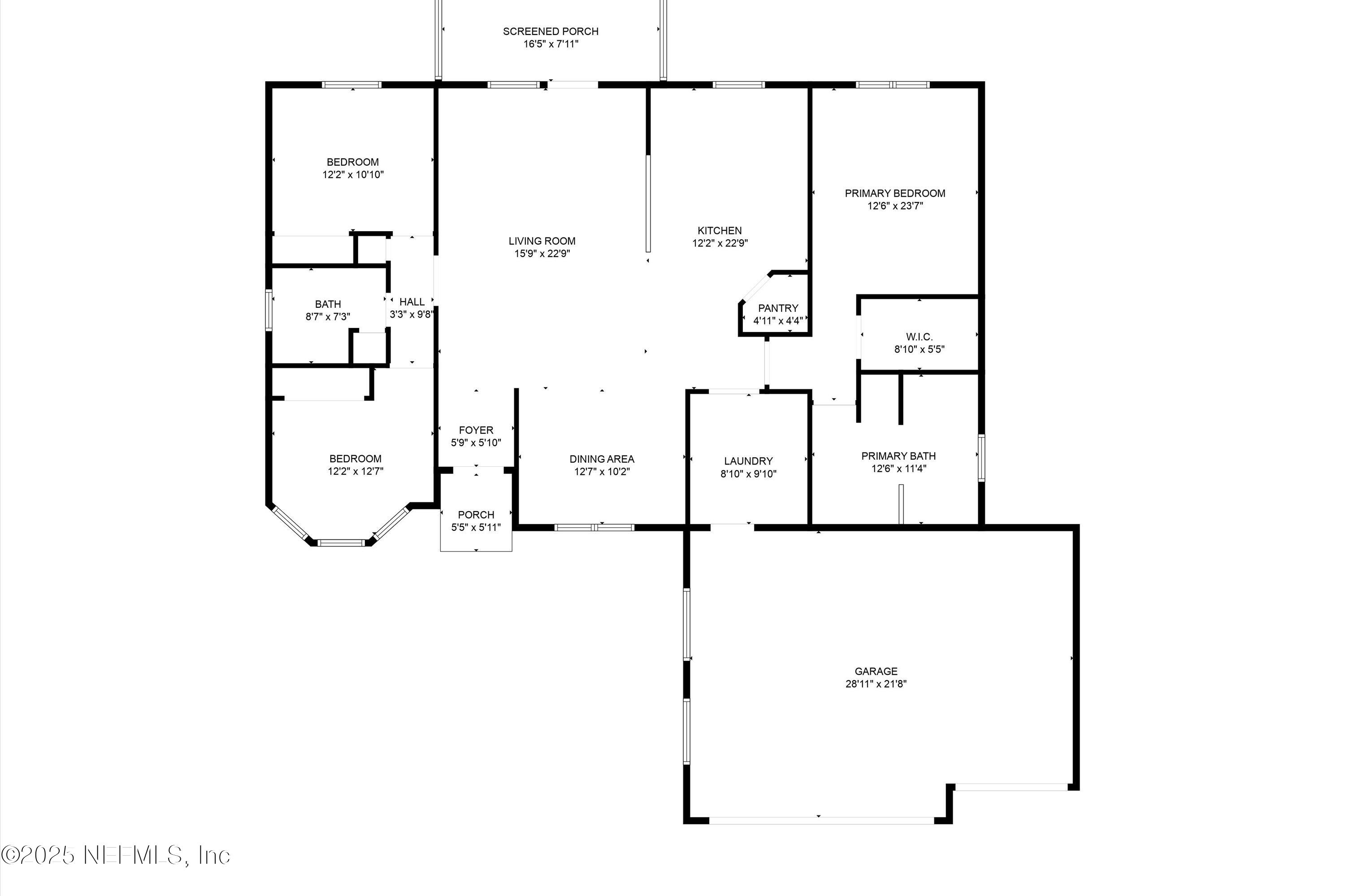
This well maintained 3 bedroom 2 bathroom home with a 3 car garage is your perfect next home! The kitchen has 42'' soft close cabinets, granite countertops, and stainless steel appliances, including a double convection oven. The open concept family room flows with the dinning area that has a tray ceiling. The spacious owner's suite has a tray ceiling and large walk in closet. There is a screened porch that leads to a large paver patio with LED lighted waterfall, along with 2 LP fire bowls. The neighborhood has a park/playground, stocked ponds, and nature trail that lead to the Black Creek Ravines Conservation Area.
Save
Ask
Tour
Hide
Share
Listing Snapshot
Price
$310,000
Days On Site
36 Days
Bedrooms
3
Inside Area (SqFt)
1,787 sqft
Total Baths
2
Full Baths
2
Partial Baths
N/A
Lot Size
0.18 Acres
Year Built
2014
MLS® Number
2111014
Status
Pending
Property Tax
$2,946.59
HOA/Condo/Coop Fees
$29.17 monthly
Sq Ft Source
Public Records
Friends & Family
React
Comment
Invite
Recent Activity
| 3 weeks ago | Listing updated with changes from the MLS® | |
| 3 weeks ago | Status changed to Pending | |
| a month ago | Listing first seen on site |
General Features
Acres
0.18
Additional Property Use
Residential
Garage
Yes
Garage Spaces
3
Number Of Stories
1
Parking
Garage
Property Sub Type
Single Family Residence
Sewer
Public Sewer
Special Circumstances
Standard
Style
Ranch
Utilities
Electricity Connected
Water Source
Public
Interior Features
Appliances
DishwasherDouble OvenMicrowaveRefrigerator
Cooling
Central Air
Flooring
Carpet
Heating
Electric
Interior
Open FloorplanWalk-In Closet(s)
Save
Ask
Tour
Hide
Share
Exterior Features
Fencing
Back Yard
Patio And Porch
PatioPorchScreened
Community Features
Association Amenities
ParkPlayground
Association Dues
350
Financing Terms Available
CashConventionalFHAVA Loan
HOA Fee Frequency
Annually
MLS Area
142-Middleburg East
Schools
School District
Unknown
Elementary School
Shadowlawn
Middle School
Lake Asbury
High School
Middleburg
Listing courtesy of GAIL LONG of BETTER HOMES & GARDENS REAL ESTATE LIFESTYLES REALTY
Listing information is provided by Participants of the Northeast Florida Multiple Listing Service(dba realMLS). IDX information is provided exclusively for personal, non-commercial use, and may not be used for any purpose other than to identify prospective properties consumers may be interested in purchasing. Information is deemed reliable but not guaranteed. Copyright 2025, Northeast Florida Multiple Listing Service(dba realMLS).
Last checked: 2025-11-04 09:32 PM UTC
Listing information is provided by Participants of the Northeast Florida Multiple Listing Service(dba realMLS). IDX information is provided exclusively for personal, non-commercial use, and may not be used for any purpose other than to identify prospective properties consumers may be interested in purchasing. Information is deemed reliable but not guaranteed. Copyright 2025, Northeast Florida Multiple Listing Service(dba realMLS).
Last checked: 2025-11-04 09:32 PM UTC
Neighborhood & Commute
Source: Walkscore
Disclosure: Community information and market data powered by Constellation Data Labs. Information is deemed reliable but not guaranteed.
Save
Ask
Tour
Hide
Share
Did you know? You can invite friends and family to your search. They can join your search, rate and discuss listings with you.