2304 SUNSET BLUFF DriveJacksonville, FL 32216
Due to the health concerns created by Coronavirus we are offering personal 1-1 online video walkthough tours where possible.




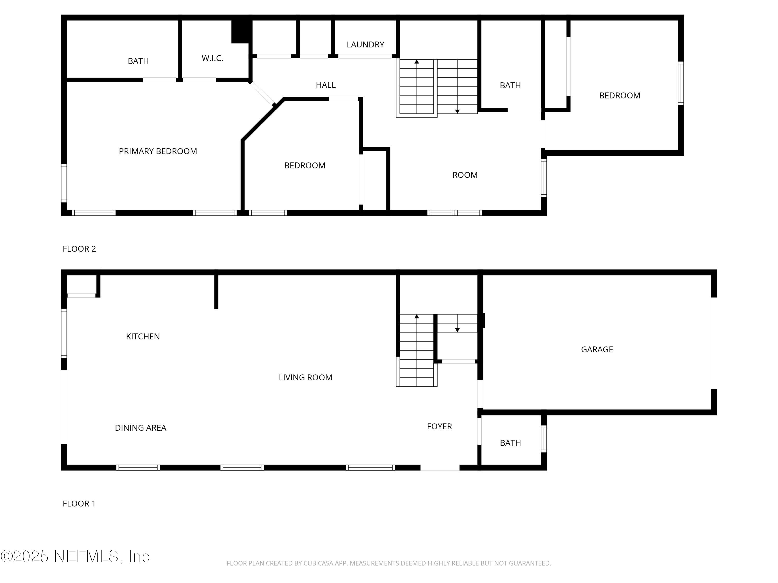
**11/5 Update**- Property has been completely painted inside. All walls, trim, baseboards, doors and garage have been repaired and painted. Don't miss your chance to own this stunning end-unit townhome! The first floor boasts gorgeous hard-surface flooring, while the upstairs offers cozy carpeting. A versatile loft area provides the perfect space for a home office, playroom, or flex space to suit your lifestyle. The spacious owner's suite features an elegant tray ceiling and a luxurious bath with double sinks. The kitchen comes fully equipped with stainless steel appliances, including an oven, refrigerator, microwave, dishwasher, and disposal—ready for all your cooking needs. Nestled in a beautifully situated community, this home offers the best of both worlds—peace and privacy while being just minutes away from shopping, dining, and major conveniences. Schedule your showing today and make this end-unit townhome your own!
| 3 weeks ago | Price changed to $245,000 | |
| 3 weeks ago | Listing updated with changes from the MLS® | |
| a month ago | Listing first seen on site |
Listing information is provided by Participants of the Northeast Florida Multiple Listing Service(dba realMLS). IDX information is provided exclusively for personal, non-commercial use, and may not be used for any purpose other than to identify prospective properties consumers may be interested in purchasing. Information is deemed reliable but not guaranteed. Copyright 2025, Northeast Florida Multiple Listing Service(dba realMLS).
Last checked: 2025-11-10 01:59 AM UTC
Did you know? You can invite friends and family to your search. They can join your search, rate and discuss listings with you.