506 GRAND RESERVE DriveBunnell, FL 32110
Due to the health concerns created by Coronavirus we are offering personal 1-1 online video walkthough tours where possible.




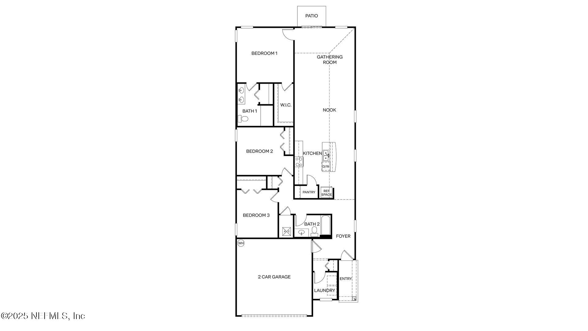
MODEL HOME READY NOW! Come see how the Berkeley home plan lives so much larger than its square footage! This home plan features approximately 1,655 square feet, with three bedrooms, two bathrooms. The open concept layout includes a large kitchen, nook and gathering room. At the heart of the kitchen is a large island where homeowners will enjoy preparing meals while entertaining family and friends. The abundance of large windows makes this home come alive with natural light. The main suite has a spacious bathroom with double vanity and large walk in closet. The Berkeley offers future homeowners an excellent new construction home with energy-efficient features in neighborhoods across North Florida!
| 7 days ago | Price changed to $319,990 | |
| 7 days ago | Listing updated with changes from the MLS® | |
| 2 weeks ago | Listing first seen on site | 
Listing information is provided by Participants of the Northeast Florida Multiple Listing Service(dba realMLS). IDX information is provided exclusively for personal, non-commercial use, and may not be used for any purpose other than to identify prospective properties consumers may be interested in purchasing. Information is deemed reliable but not guaranteed. Copyright 2025, Northeast Florida Multiple Listing Service(dba realMLS).
Last checked: 2025-11-04 06:37 AM UTC
								
Did you know? You can invite friends and family to your search. They can join your search, rate and discuss listings with you.