Save
Ask
Tour
Hide
Share
$920,000
28 Days On Site
2236 ST JOHNS AvenueJacksonville, FL 32204
For Sale|Quadruplex|Active
4
Beds
4
Total Baths
4
Full Baths
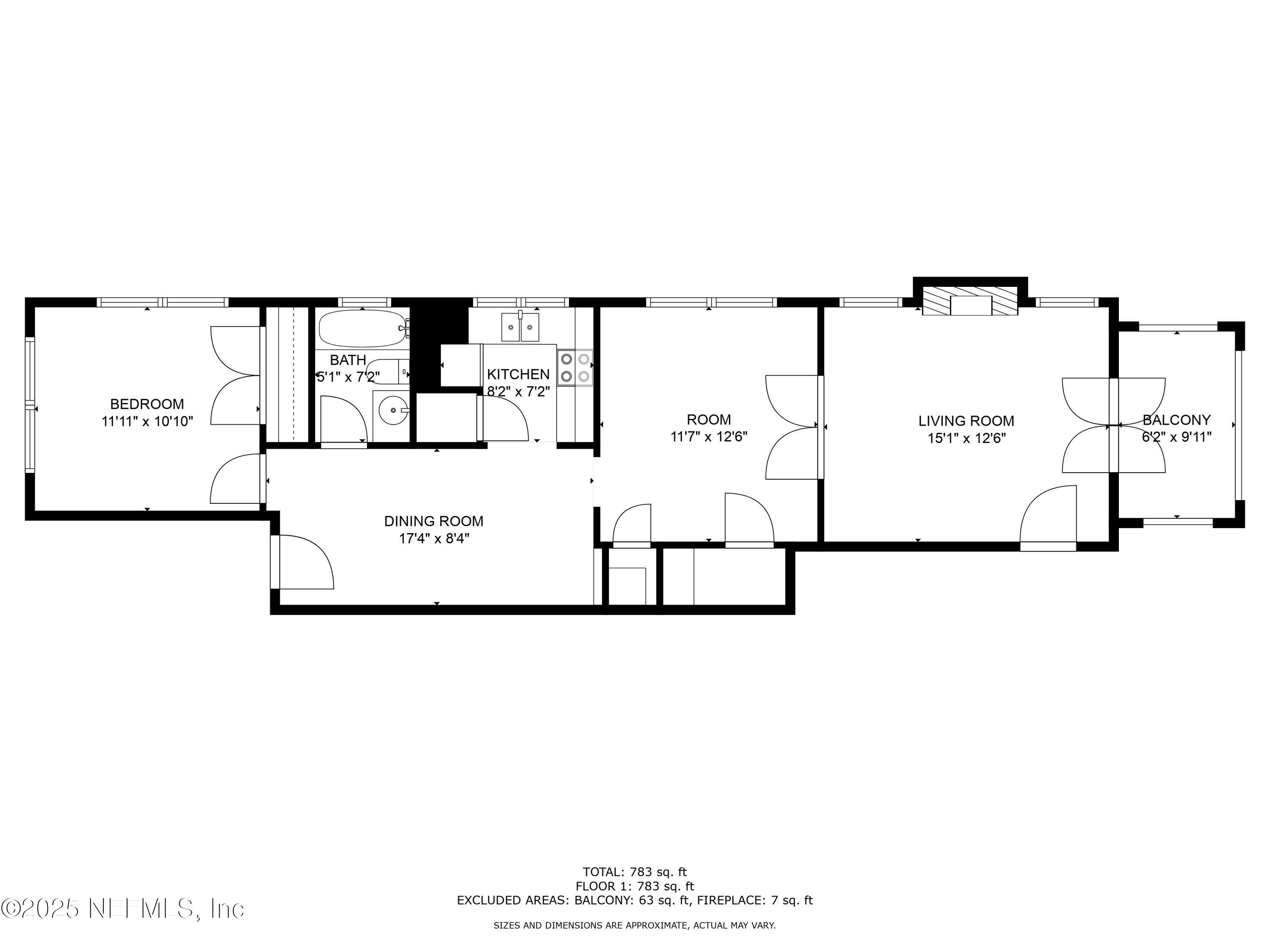
3,352
SqFt
$274
/SqFt
1926
Built
Subdivision:
Riverside S/d
County:
Duval
Listing courtesy of GINNY GREENLAND of TRADITIONS REALTY LLC
Due to the health concerns created by Coronavirus we are offering personal 1-1 online video walkthough tours where possible.
Call Now: 904-683-5230
Is this the listing for you? We can help make it yours.
904-683-5230



Save
Ask
Tour
Hide
Share
Photos
Map
Nearby Listings
Fabulous weeping brick quadruplex in the St Johns Quarter Historic district. This classic buiding has river views from the bedroom of each unit, most rooms have original hardwwod floors and high ceilings. All units currently leased w/1 unit month to month. Each apartment has formal LR w/fireplace and Dining room and front covered balcony. Kitchen equipped w/ range and refrigerator. All have in unit washer & dryer. Seller pays water & house electric. All units have seperate elec meters.
Save
Ask
Tour
Hide
Share
Listing Snapshot
Price
$920,000
Days On Site
28 Days
Bedrooms
4
Inside Area (SqFt)
3,352 sqft
Total Baths
4
Full Baths
4
Partial Baths
N/A
Lot Size
0.11 Acres
Year Built
1926
MLS® Number
2115903
Status
Active
Property Tax
$10,318.63
HOA/Condo/Coop Fees
N/A
Sq Ft Source
Public Records
Friends & Family
React
Comment
Invite
Recent Activity
| 4 weeks ago | Listing first seen on site | |
| 4 weeks ago | Listing updated with changes from the MLS® |
General Features
Acres
0.11
Additional Property Use
Residential
Levels
Two
Number Of Stories
2
Parking
On Street
Property Sub Type
Quadruplex
Sewer
Public Sewer
Special Circumstances
Standard
Water Source
Public
Zoning
Residential/Office
Interior Features
Appliances
DishwasherElectric RangeElectric Water HeaterRefrigeratorWasher/Dryer Stacked
Cooling
Central AirElectric
Fireplace
Yes
Fireplace Features
Wood Burning
Fireplaces
4
Flooring
CarpetVinylWood
Furnished
Unfurnished
Heating
CentralElectric
Laundry Features
In Unit
Save
Ask
Tour
Hide
Share
Exterior Features
Construction Details
Brick
Exterior
Balcony
Fencing
Back Yard
Road Frontage
City Street
Roof
Tile
Community Features
Financing Terms Available
CashConventional
MLS Area
031-Riverside
Roads
Asphalt
Listing courtesy of GINNY GREENLAND of TRADITIONS REALTY LLC
Listing information is provided by Participants of the Northeast Florida Multiple Listing Service(dba realMLS). IDX information is provided exclusively for personal, non-commercial use, and may not be used for any purpose other than to identify prospective properties consumers may be interested in purchasing. Information is deemed reliable but not guaranteed. Copyright 2025, Northeast Florida Multiple Listing Service(dba realMLS).
Last checked: 2025-11-29 08:30 AM UTC
Listing information is provided by Participants of the Northeast Florida Multiple Listing Service(dba realMLS). IDX information is provided exclusively for personal, non-commercial use, and may not be used for any purpose other than to identify prospective properties consumers may be interested in purchasing. Information is deemed reliable but not guaranteed. Copyright 2025, Northeast Florida Multiple Listing Service(dba realMLS).
Last checked: 2025-11-29 08:30 AM UTC
Neighborhood & Commute
Source: Walkscore
Disclosure: Community information and market data powered by Constellation Data Labs. Information is deemed reliable but not guaranteed.
Save
Ask
Tour
Hide
Share
Did you know? You can invite friends and family to your search. They can join your search, rate and discuss listings with you.