121 SHADRICK LaneSatsuma, FL 32189
Due to the health concerns created by Coronavirus we are offering personal 1-1 online video walkthough tours where possible.


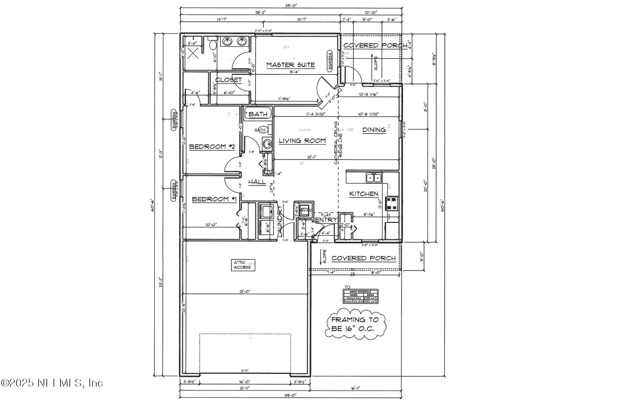
Brand New Construction in St. Johns River Estates! Enjoy quality craftsmanship and modern design in this beautiful new home located in a peaceful riverfront community with private boat ramp access. Estimated completion March 2026. Built to last with 2x6 exterior framing, R-19 wall insulation, and spray foam roof insulation, this home offers both efficiency and durability. Features include LP SmartSide siding, architectural shingles or metal roofing, Low-E windows, and fiberglass insulated doors. Interior finishes showcase LVP flooring, tile showers and surrounds, soft-close cabinetry, and granite or solid-surface countertops. Every detail reflects quality, from the Amarr garage door to Sherwin-Williams or Behr paint. If an offer is made soon enough, buyers can select certain colors and finishes for a personalized touch. The builder has additional lots and home packages available.
| 16 hours ago | Listing first seen on site | |
| 16 hours ago | Listing updated with changes from the MLS® |
Listing information is provided by Participants of the Northeast Florida Multiple Listing Service(dba realMLS). IDX information is provided exclusively for personal, non-commercial use, and may not be used for any purpose other than to identify prospective properties consumers may be interested in purchasing. Information is deemed reliable but not guaranteed. Copyright 2025, Northeast Florida Multiple Listing Service(dba realMLS).
Last checked: 2025-11-08 08:39 AM UTC
Did you know? You can invite friends and family to your search. They can join your search, rate and discuss listings with you.